IN VENDITA

310.000 €

PUNTI CHIAVE:
  • 1 Camere
  • 1 Bagni
  • 50 m2
POSIZIONE:

Viale Lodovico Scarampo , Milano

moderno bilocale da investimento in una delle zone migliori di milano!
Descrizione

MODERNO BILOCALE DA INVESTIMENTO IN UNA DELLE ZONE MIGLIORI DI MILANO!
(Viale Lodovico Scarampo)

Nello storico quartiere Fiera, a pochi passi dalla bellissima City Life, vi portiamo a scoprire questo intrigante bilocale di design caratterizzato da ambienti estremamente funzionali, pensati da un architetto professionista per esaltare al meglio il comfort abitativo.

L'appartamento si trova in un elegante edificio signorile molto ben tenuto grazie al costante servizio di pulizie, il cui fascino storico si fonde perfettamente con la modernità degli spazi interni, resi estremamente luminosi dalle numerose ed ampie finestre presenti.
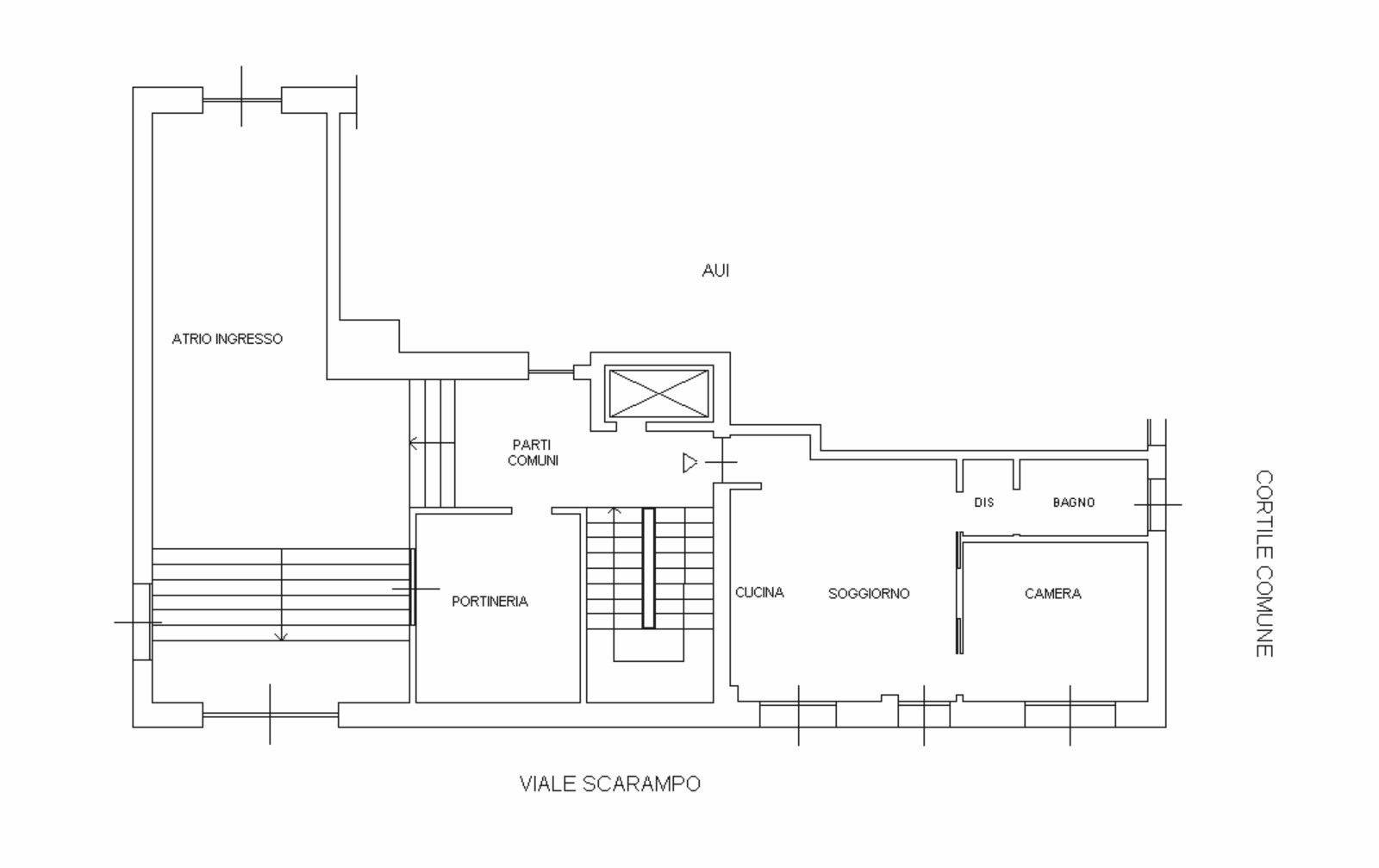
Una volta entrati ci troviamo subito immersi nell'accogliente soggiorno dove la stupenda cucina open space si integra perfettamente con la sala da pranzo; dopo di che arriviamo all'ampia camera da letto matrimoniale, per terminare infine con il comodo bagno completo finestrato, preceduto dal pratico antibagno.

Numerosi sono i plus di cui gode l'immobile, come l'efficiente riscaldamento centralizzato, la predisposizione per l'aria condizionata, le finiture e materiali di pregio, la possibilità di acquisto di un'utilissima cantina, e tanto altro che non vediamo l'ora di mostrarvi direttamente sul posto.

La posizione parla da sè, di fatti è senza dubbio strategica in quanto siamo circondati da numerose attività e mezzi di trasporto (M1, M5 bus...) che ci consentono di vivere la nostra routine in totale facilità, senza dover rinunciare a niente, fattore da tenere in considerazione soprattutto se stai cercando in ottica di investimento ad alta rendita per la messa a reddito.


IL PRESENTE ANNUNCIO NON COSTITUISCE ELEMENTO CONTRATTUALE

*Vendi il tuo immobile?*
Contattaci per una valutazione gratuita!
Sapremo consigliarti il metodo migliore per una corretta e veloce vendita.
Affidati sempre a dei veri professionisti!!
SEGUICI SULLE NOSTRE PAGINE SOCIAL DI FACEBOOK E INSTAGRAM: @italhomemilano2
Agenzia Immobiliare: Via G. Washington n.104 - Milano
Telefono 02/84980828
Sul nostro sito Ital-Home Milano2 troverete innumerevoli offerte ed occasioni. VISITATELO! Oppure venite a trovarci in agenzia senza impegno, i nostri orari sono i seguenti: dal Lunedì al Venerdì dalle 9.00 alle 19.00 Il sabato su appuntamento

Panoramica
  • Riferimento: BILO-SCARAMPO
  • Camere: 1 Camere
  • Bagni: 1 Bagni
  • Superficie: 50 m2
  • Del: 1960
Dettagli
ID Interno:
BILO-SCARAMPO
Camere:
1
Prezzo:
€ 310.000
Bagni:
1
Superficie:
50 m2
Costruzione:
1960
Tipo di Proprietà:
Appartamento
Piano:
Piano 6 di 4
Stato:
Ottimo
Riscaldamento:
Centralizzato
Ubicazione
(Ubicazione approsimativa)
Calcola il Mutuo
Rata Mensile: € 1'497,73
Il valore sopra riportato ha solo scopo indicativo ed è variabile in base al singolo Ente finanziatore ed al tasso indicato.
Contatta l'agenzia
avatar
Ital Home Milano 2
02 849.808.28
milano2@ital-home.it
Perchè Scegliere Noi?
  • Acquisti in sicurezza
  • Miglior Prezzo Garantito
  • Consulenza personalizzata
  • Ascolto, dedizione, esperienza
Valuta la Tua Casa

Scopri il vero valore della tua casa o di quella che vuoi acquistare!

Inizia Valutazione
image
In base alla tua ricerca

Potrebbe interessarti

Appartamento a Villa d'Almè
  • In Vendita
Appartamento

Villa d'Almè

  • 4
  • 2
  • 270m2
  • Doppio
avt
Studio Casa Villa D'Almé
€ 195.000
Villa a Villa d'Almè
  • In Vendita
Villa

Villa d'Almè

  • 4
  • 2
  • 96m2
  • Singolo
avt
Studio Casa Villa D'Almé
€ 397.000
Villa a Villa d'Almè
  • In Vendita
Villa

Villa d'Almè

  • 4
  • 2
  • 96m2
  • Singolo
avt
Studio Casa Villa D'Almé
€ 420.000