IN VENDITA

145.000 €

PUNTI CHIAVE:
  • 2 Camere
  • 1 Bagni
  • 100 m2
POSIZIONE:

brusadelli , La Valletta Brianza

appartamento in vendita a la valletta brianza
Descrizione

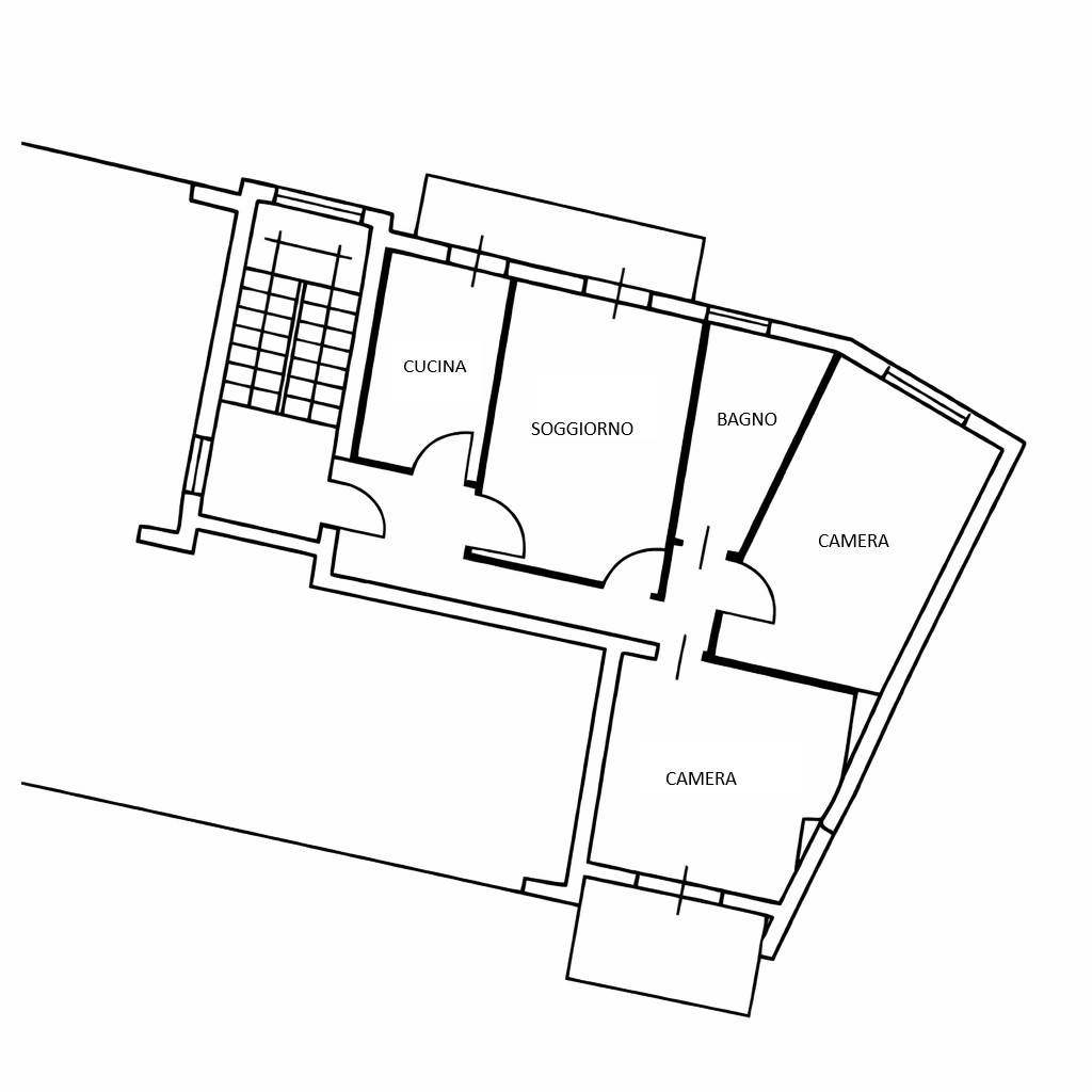
APPARTAMENTO SPAZIOSO E IN CENTRO PAESE

Proponiamo in vendita appartamento residenziale ideale per famiglie, caratterizzato da spazi ben distribuiti, ambienti luminosi e affacci gradevoli.
L'ingresso conduce a una zona giorno accogliente e ben organizzata, con area soggiorno e pranzo in un unico ambiente, valorizzata dalla portafinestra con accesso al balcone, perfetto come sfogo esterno e spazio vivibile.
La zona notte comprende camere ampie e funzionali, facilmente adattabili alle esigenze di una famiglia, con possibilità di cameretta per bambini o studio. Gli ambienti risultano luminosi e ben proporzionati.
Il bagno finestrato è completo e funzionale, con spazi ben sfruttati.
L'appartamento si presenta abitabile, con buone potenzialità di personalizzazione.

Al piano interrato troviamo inoltre cantina e box compresi nel prezzo

Soluzione ideale per chi cerca una casa pratica, luminosa e adatta alla vita familiare, in un contesto tranquillo.

LIBERO DA SETTEMBRE

Panoramica
  • Riferimento: 725
  • Camere: 2 Camere
  • Bagni: 1 Bagni
  • Box: Box Singolo
  • Superficie: 100 m2
Dettagli
ID Interno:
725
Camere:
2
Prezzo:
€ 145.000
Bagni:
1
Superficie:
100 m2
Box:
Singolo
Tipo di Proprietà:
Appartamento
Piano:
Ultimo di 2
Stato:
Buono
Riscaldamento:
Centralizzato
Classe:
G
Caratteristiche
  • Box Singolo
Ubicazione
(Ubicazione approsimativa)
Calcola il Mutuo
Rata Mensile: € 700,55
Il valore sopra riportato ha solo scopo indicativo ed è variabile in base al singolo Ente finanziatore ed al tasso indicato.
Contatta l'agenzia
avatar
Ital Home Olgiate
0399274065
olgiate@ital-home.it
Perchè Scegliere Noi?
  • Acquisti in sicurezza
  • Miglior Prezzo Garantito
  • Consulenza personalizzata
  • Ascolto, dedizione, esperienza
Valuta la Tua Casa

Scopri il vero valore della tua casa o di quella che vuoi acquistare!

Inizia Valutazione
image
In base alla tua ricerca

Potrebbe interessarti

Appartamento a Stezzano
  • In Vendita
Appartamento

Stezzano

  • 3
  • 2
  • 110m2
  • Doppio
avt
Ital Home Dalmine
€ 248.000
Appartamento a Milano
  • In Vendita
Appartamento

Milano

  • 3
  • 1
  • 80m2
avt
Ital Home Milano 2
€ 310.000
Chalet a Fuipiano Valle Imagna
  • In Vendita
Chalet

Fuipiano Valle Imagna

  • 7
  • 2
  • 340m2
  • Rimessa
avt
Studio Casa Villa D'Almé
€ 125.000