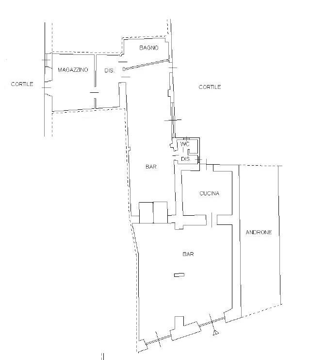
Bergamo, quartiere San Paolo, direttamente su Via Broseta, zona di forte passaggio sia pedonale che automobilistico, vicino alla fermata del pullman e con numerosi parcheggi nelle immediate vicinanze, proponiamo in vendita grande locale commerciale senza barriere architettoniche, ristrutturato nel 2014, con 2 vetrine fronte strada, 2 servizi, di cui uno a norma per disabili, una cucina con 2 canne fumarie e un magazzino con comodo accesso dal cortile interno.
Previa autorizzazione del comune (già concessa al precedente inquilino) vi è inoltre la possibilità di usufruire dello spazio esterno, fronte strada, per il servizio ai tavoli.
Gli impianti di riscaldamento e raffrescamento sono termoautonomi e le spese condominiali ammontano a meno di 80€ al mese.
La soluzione, senza riammodernamenti, si presta perfettamente a conservare l'attività di bar e ristorazione e, considerate le sue ampie dimensioni e la posizione in vista, potrebbe trasformarsi, senza dispendio economico, in un negozio o in un ufficio.
Già libero e disponibile sin da subito!
Chiamaci subito e prenota con noi una visita di persona.
Cod. COM169
Devi anche vendere casa? Lo studio Ital Home Broseta ti assiste dalla A alla Z, inclusa la conformità urbanistica.
La tua casa, il nostro progetto!
Ital Home Broseta
Bergamo, Via Broseta n. 26
Telefono 035.04.00.280
E-Mail broseta@ital-home.it
Molte altre offerte sono disponibili sul nostro sito: www.brosetaital-home.it
Stezzano
Milano
Fuipiano Valle Imagna