IN VENDITA

300.000 €

PUNTI CHIAVE:
  • 2 Camere
  • 2 Bagni
  • 116 m2
POSIZIONE:

Via Sant'Alessandro 72, Bergamo

sant'alessandro, vic. piazza pontida: trilocale con doppi servizi, in elegante stabile
Descrizione

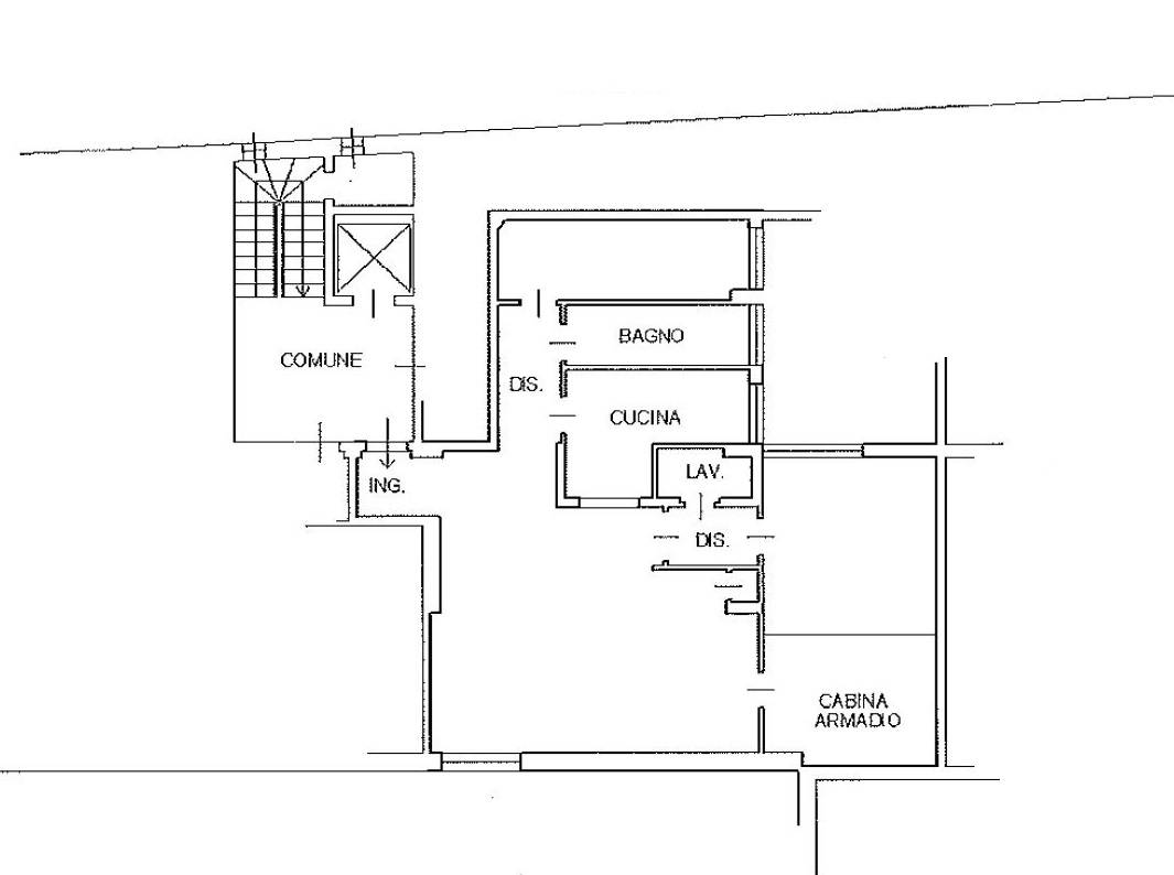
Bergamo Storica, via Sant'Alessandro alta: all'interno di un elegante stabile con giardino, servizio di portierato ed ascensore, vendiamo grande trilocale posto a piano 2' e completo di cantina.
La soluzione presenta finiture signorili e ben curate, porte interne nuove, infissi in legno doppi vetri con tapparelle elettriche e pavimenti in marmo nella zona giorno e parquet nel reparto notte.
Internamente si compone di: ampio ingresso, salone rivolto sul giardino interno privato, cucina abitabile, disimpegno notte, 2 camere da letto, 2 servizi e un'ampia cabina armadio.
Chiamaci subito e prenota con noi un appuntamento per vederlo!
Già libero!
Possibilità box in affitto nello stabile!
Cod. T584

Devi anche vendere casa? Lo studio Ital Home Broseta ti assiste dalla A alla Z, inclusa la conformità urbanistica.
La tua casa, il nostro progetto!

Ital Home Broseta
Bergamo, Via Broseta n. 26
Telefono 035.04.00.280
E-Mail broseta@ital-home.it
Molte altre offerte sono disponibili sul nostro sito: www.brosetaital-home.it

Panoramica
  • Riferimento: T584
  • Camere: 2 Camere
  • Bagni: 2 Bagni
  • Superficie: 116 m2
  • Del: 1970
Video
Dettagli
ID Interno:
T584
Camere:
2
Prezzo:
€ 300.000
Bagni:
2
Superficie:
116 m2
Costruzione:
1970
Tipo di Proprietà:
Appartamento
Piano:
2 di 5
Stato:
Buono
Riscaldamento:
Centralizzato
Classe:
G
Caratteristiche
  • Ascensore
  • Giardino Comune
  • Esposizione: nord/est
Ubicazione
(Ubicazione approsimativa)
Calcola il Mutuo
Rata Mensile: € 1'449,42
Il valore sopra riportato ha solo scopo indicativo ed è variabile in base al singolo Ente finanziatore ed al tasso indicato.
Contatta l'agenzia
avatar
Ital Home Broseta
035 04.00.280
broseta@ital-home.it
Perchè Scegliere Noi?
  • Acquisti in sicurezza
  • Miglior Prezzo Garantito
  • Consulenza personalizzata
  • Ascolto, dedizione, esperienza
Valuta la Tua Casa

Scopri il vero valore della tua casa o di quella che vuoi acquistare!

Inizia Valutazione
image
In base alla tua ricerca

Potrebbe interessarti

Appartamento a Milano
  • In Vendita
Appartamento

Milano

  • 2
  • 1
  • 70m2
avt
Ital Home Milano 2
€ 349.000
Appartamento a Milano
  • In Vendita
Appartamento

Milano

  • 3
  • 2
  • 80m2
avt
Ital Home Milano 2
€ 535.000
Casa singola a Alghero
  • In Vendita
Casa singola

Alghero

  • 8
  • 3
  • 260m2
avt
Alghero Ital Home
€ 210.000